Duplex Manufactured Homes? More Attached Garages? HUD Issues Revised Standards & DOE Rule Opposition Impacts & Insights

DuplexManufacturedHomesMoreAttachedGaragesHUDIssuesRevisedStandardsDOERuleOppositionImpactsMHProNews

Duplex manufactured homes. Attached garages or carports part of the design of HUD Code manufactured housing. These are among the items that have long been simmering on the industry’s formal agenda. Today’s report could be summed up as being about significant federal regulations fought and regulations that are changing on those and other pressing topics. It is an arguably an example of what authentic trade association work looks like vs. the faux, ersatz, or even Quislingwork” done by the debatably duplicitous Manufactured Housing Institute (MHI)  while they posture so called “razzle dazzle” efforts – all while MHI has been failing to achieve their own stated goals for well over a decade.

 

DuplexHUDCodeManufacturedHomeLegacyHousingLEGHExteriorPhotoManufacturedHomePicManufacturedHomeProfessionalNewsMHProNewsLogo
The photos and illustrations shown above and below were not part of either trade group’s news items. It was the first one that came up in an online search.

The independent producers focused Manufactured Housing Association for Regulatory Reform (MHARR) vs. the conglomerates focused MHI each provided timely and relevant items for this report.

 

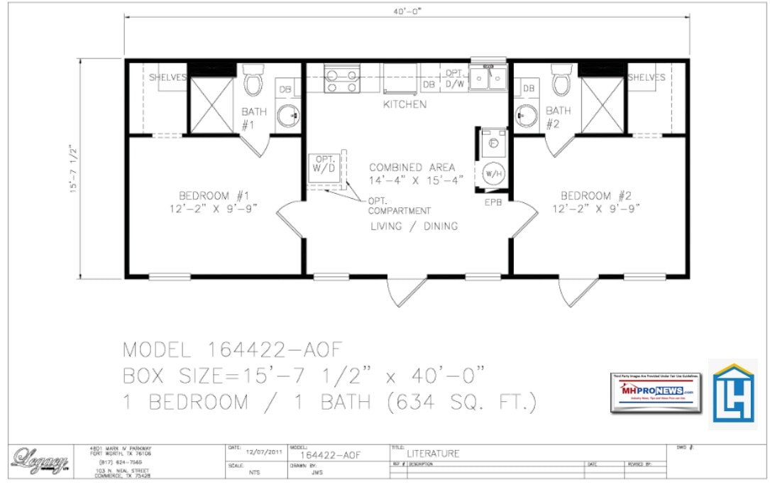
LegacyHousing16x40DuplexManufacturedHomeMHProNews
The notice in the photo above given, it should be noted that Legacy Housing has done several innovative designs in smaller housing units, including “tiny houses.” So, it is perhaps no surprise that their duplex model would be the first such image to come up in a search.

 

In their latest Washington Update to MHProNews, the ones from MHARR are shown below. That will be followed by a specific item from MHI. The MHI related item will be the subject of a planned special report in the near term based on an insider tip. So getting to know it will prove useful for some time to come.

 

LegacyHousingLOGODuplexModel2Bed2xThreeQuarterBathShowerHalfOfFloorplan16x40ManufacturedHomeProNewsLogoMHProNewsLogo
To see this floorplan in a larger size, click here.

 

As longtime readers know – and new readers should note – their respective “We Provide, You Decide” ©  reports will be followed by additional relevant and related information, expert analysis and commentary.

 

WeProvideYouDecideManufacturedHomeProNewsMHEClogoMHILogoMHARRlogo
There must always be a distinction between leadership of corporations and their association vs. others who work for or with a specific company or nonprofit. Some of our more reliable sources include people who have problematic leadership at their firm or association, but who themselves are working behind the scenes to shed light on corrupt or conflict of interest types of actions.

 

Note that while the MHARR copy is unchanged, spacing has been added by MHProNews to break a dense paragraph into shorter ones. Some of their language is technical, which is frankly important and useful for lawmakers, industry professionals, advocates, and other interested parties or housing experts.

 

 

MainstreamMediaSpotlightsMHARR_LettersHUDDana WadeFHFA-MarkCalabriaManufacturedHousingAssocRegulatoryReformLogoMHProNews

 

HUD ISSUES “THIRD” SET OF NEW AND REVISED STANDARDS

HUD, on January 12, 2021, published, as a final rule, the so-called “third set” of new and revised Federal Manufactured Housing Construction and Safety Standards recommended by the Manufactured Housing Consensus Committee. While these standards,  generally supported by MHARR in written comments filed on March 30, 2020, address a number of longstanding industry concerns, including issues prioritized and advanced by MHARR, HUD’s final rule does not address any of the necessary and far-reaching regulatory reform proposals recommended by the MHCC in 2019 and early 2020. The rule, accordingly, is arguably more notable for what it excludes, rather than what it includes.

Among other things, the HUD rule, published in the Federal Register on January 12, 2021, with an effective date of March 15, 2021, establishes new standards for attached garages and carports. Both had been subject of sub-regulatory HUD “guidance” memoranda — which MHARR maintained were unlawful in violation of the 2000 reform law’s mandatory MHCC review and notice and comment requirements — as well as program approval based on the lengthy and unduly burdensome Alternate Construction (AC) process. In addition to these provisions, the January 12, 2021 rule also establishes new requirements for Carbon Monoxide alarms, as well as standards relating to stairways and doors.

Also, among the new standards adopted by the rule, is a new Subpart K of the Part 3280 standards, for “attached” or “zero-lot-line” manufactured homes, defined as “Two or more adjacent manufactured homes that are structurally independent from foundation to roof and with open space on at least two sides, but which have the appearance of a physical connection…”

While MHARR, in its written comments, had generally supported this expansion of permissible manufactured home designs, it questioned the motives behind HUD’s sudden impulse to resurrect this particular MHCC proposal, which dates back to 2006, without simultaneously taking action to advance a more significant and more recent proposal advanced by MHARR and recommended by the MHCC, to permit and establish standards for, multi-family manufactured homes – a step that would further cement the statutorily-mandated parity between manufactured homes and site-built homes.

While failing to explain why multi-unit, multi-family manufactured home standards could not have been included in the January 12, 2021 final rule, HUD’s preamble notes that “MHCC recommendations for multi-unit manufactured homes are contained in the fourth set of its recommendations for changes to the standards.”

MHARR, as a result, will further intensify its efforts to press HUD to propose and adopt standards for such homes, as an essential step in the evolution of today’s modern manufactured housing, and as a step that would be fully consistent with the Biden Administration’s stated focus on improving and expanding housing choices for people in need of affordable housing.

##

 

DOE WITHDRAWS FURNACE RULE OPPOSED BY MHARR

The U.S. Department of Energy (DOE), in a notice published in the Federal Register on January 15, 2021, has formally withdrawn two rules proposed in 2015 and 2016 — and opposed by MHARR — that would have imposed costly and destructive energy conservation standards on residential gas furnaces, including furnace types commonly used in manufactured homes. Instead, DOE, in a final interpretive rule published in the same edition of the Federal Register, determined that: “… [I]n the context, of residential furnaces … and similarly-situated products/equipment, [the] use of non-condensing technology (and associated venting) constitute a performance-related ‘feature’ under [the Energy Policy and Conservation Act] that cannot be eliminated through [the] adoption of an energy conservation standard.”

As a result, DOE interprets ECPA “to preclude the adoption of energy conservation standards that would limit the market of natural gas, propane gas and/or oil-fired furnaces, water heaters, or similarly-situated covered products/equipment … to appliances that use condensing combustion technology, as that would result in the unavailability of a performance related feature within the meaning of” applicable law. (Emphasis added).

The withdrawal of these rules, which would have significantly and disproportionately impacted HUD Code manufactured homes and manufactured housing consumers, came in response to a natural gas industry coalition petition originally filed in October 2018 and subsequent September 9, 2019 comments filed by members of that same coalition and MHARR, on behalf of manufactured housing producers and industry small businesses.

Insofar as the final interpretive rule (which effectively requires the revocation of the earlier DOE-proposed furnace rules) has an immediate effective date of January 15, 2021 – i.e., prior to the start of the Biden Administration – it does not appear that it will be affected by the Biden Administration’s January 20, 2021 regulatory “freeze” order (see, article above). Nevertheless, MHARR will carefully monitor this matter to address any effort to “claw-back” this revocation.

##

The Manufactured Housing Association for Regulatory Reform is a Washington, D.C.-based national trade association representing the views and interests of independent producers of federally-regulated manufactured housing.

###

TownRejectsHundredsAffordableHousingUnitsCitsReasonsAgainstUsingManufacturedHomesDailyBusinessNewsMHProNews
Image above used to illustrate an actual attached garage to an existing manufactured home, see a related report about various manufactured homes with garage designs linked here on MHLivingNews. The headline topic about “metro town rejects” is linked here. As the industry’s erstwhile post-production trade group, this would fall under the MHI bailiwick and speaks to their effectiveness, or lack thereof.

 

 Work Horse and Show Horse

 

Additional Information from MHI, MHProNews, Expert Analysis and Commentary

Sometimes the best way to highlight the work of this or that group, business, or organization is to allow them to speak for themselves in their own words. Then, those claims should be expertly compared and contrasted with others addressing the same topic.

With that principle in mind, the following was part of the Manufactured Housing Institute (MHI) “news and updates” to their members in February 3, 2021.

From the Manufactured Housing Institute (MHI) on 2.3.2021.

MHI in Action

Manufactured Housing Front and Center

During Nomination Hearing

for HUD Secretary Nominee Fudge

Senators from both sides of the aisle questioned President Biden’s Nominee for HUD Secretary, Representative Marcia Fudge, about manufactured housing during her nomination hearing. Testifying before the U.S. Senate Banking Committee, Fudge called manufactured housing an “outstanding option,” and she touted its affordability and efficiency. She told the Senate Committee that she is “100% supportive” of looking at incorporating manufactured housing into the Department’s affordable housing strategies.

Fudge also told the Committee that addressing exclusionary zoning is a priority. She testified that “we have to get rid of the idea of ‘Not in my Backyard’.” While acknowledging as a former mayor that this will be difficult, she discussed the need to find incentives for home builders to work with HUD and local lawmakers to change zoning laws.

In advance of the hearing, MHI worked with members of the Senate Banking Committee to have manufactured housing a key topic of discussion. MHI also recently met with Fudge to discuss the role that manufactured housing serves in addressing the affordable housing shortage in the country and encouraging her to ensure HUD facilitates the availability of manufactured housing for all Americans, as required by law.

Here is the screen capture of the entire bulleted list of topics that MHI covered this week.

 

ManufacturedHousingInstituteLogoMHILogoFeb32021NewsUpdateRepMarciaFudgeSenateNominationHearingNewsItemMHProNewsFactCheckAnalysis
MHProNews has long provided the visual, linked or other evidence to back up statements and claims. There are several reasons for doing so, including the case that can be made that MHI, through surrogates, have tried to inaccurately or falsely claim MHProNews takes things out of context, etc. If that were the case, and if MHI could publicly refute our various contentions, why have they ducked public debate of their performance for some 4+ years? To see the screen capture above full size, click here.
TimWilliamsCallsLesliGoochSupurbButLatestTipRevealsAdditionalMHICEOGoochControversyConnectedDocumentsManufacturedHomeProNews
https://www.manufacturedhomepronews.com/tim-williams-calls-lesli-gooch-superb-but-latest-tip-reveals-additional-mhi-ceo-gooch-controversy-connected-documents/
RazzleDazzleDefintionImageManufacturedHomeProNews
If MHI wants to impress the industry, have Lesli Gooch,  Chairman Tom Hodges (Clayton Homes general counsel), and the rest of the MHI leadership team set a few hours aside for a video interview with MHProNews. We can show it unedited, so that everyone can see what is asked, and what is answered. Will they take up that challenge? Or would they rather have a public debate about their so-called performance on behalf of the industry? If not, why not? 

 

Manufactured Housing Expert Analysis and Commentary

Notice that NONE of the topics that MHARR covered this week were addressed by MHI?  Not one? How is that possible? With important topics like production and shipment levels or the topics noted above and below, how is it possible that MHI ignored every one of these significant issues?

As a keen insight from a MHEC (Manufactured Housing Executives Council) member said to MHProNews,There are work horses and there are show horses.” MHEC is made up largely by manufactured housing state association executives. Most if not all are “affiliates” of MHI, some are affiliated with MHARR.

That same MHEC member told MHProNews that MHI is the “show horse” of the industry while MHARR is the “work horse” for manufactured housing, especially when it comes to the interests of consumers and the independent producers that serve them.

With that notion in mind, let’s dive deeper into the arguably critical and underappreciate role that “work horse” MHARR has been playing in Washington and beyond for decades. How so?

While there are routinely claims made that when MHARR gets things done, while MHI often tries to grab credit.  While that is a relevant issue, set that point aside for now. Simply focus on what is in this report.

If MHI wanted to spotlight the industry significant issues that impact HUD Code manufactured housing why did the Arlington, VA based MHI fail to cover the same topics this week as were addressed by Washington, D.C. based MHARR? Doesn’t that speak to numerous issues that lurk below the waterline?

On topics of importance this week as relevant to the industry as:

 

  • new HUD Code manufactured home production/shipment levels and trends – and what that says about big corporate ‘leadership’ and (or lack thereof) and how that impacts manufactured housing specifically, and affordable housing in general. MHARR addressed it with factual specifics. By contrast, MHI totally ignored the issue of production and shipment levels.  See the related report further below.
  • Or regulatory changes that could open the door to potentially hundreds of thousands of additional sales that this report is focused on, why did MHI fail to mention a useful issue? Is it possibly because they are trying to keep that tool more for their larger members? Are they trying to divert attention away from potential profit centers by using diversionary “razzle dazzle” tactics and talking about other matters instead?

 

ManufacturedHousing2020ProductionShipmentAnnualTotalsDec2020StatsManufacturedHousingInstituteLOGOManufacturedHousingAssocRegulatoryReformLOGOReportsComparedDataAnalysisMHProNewsLOGO
https://www.manufacturedhomepronews.com/manufactured-housing-2020-production-shipment-annual-totals-manufactured-housing-institute-and-manufactured-housing-association-for-regulatory-reform-mharr-reports-compared-data-analysis/

 

Further, on the regulatory front.  It must not be forgotten that MHARR did yeoman’s work on forcing the larger MHI into abandoning their costly and potentially harmful multi-year effort regarding DOE regulations during the Obama-Biden administration.

 

AnotherMHIFlipFlopManufacturedHousingInstituteMHI-DOELogoManufacturedHomeEnergyRuleDailyBusinessNewsReportsReseardhDataMHProNews
https://www.manufacturedhomepronews.com/manufactured-housing-institute-mhi-shifts-on-doe-regulatory-rule-report-analysis/ Collage credit, MHProNews.com.

 

On the above, as the linked report details, instead of “show boating” or “show horsing” around with a “housing coalition” that fails to deliver for manufactured housing – as MHI is so found of touting – MHARR worked quietly but effectively in “work horse fashion” to get outside groups to use facts that ended up winning the day.

 

KurtKelleyPublisherPhotoManufacturedHousingReviewMHLivingNewsQuoteFriendHoldMHIAccountableMHARR

 

As newcomers to this site should know, and longtime readers may need a reminder, billionaires Warren Buffett and Michael Bloomberg – supporters of Obama-Biden and of Biden-Harris – worked through dark money channels in an effort to subvert via litigation what MHARR accomplished through direct efforts.

 

SierraClubDeptEnergyEELegalInstituteLogoWarrenBuffettMichaelBloombergPhotoManufacturedHomeProNews
https://www.manufacturedhomepronews.com/masthead/energy-environment-institute-big-donors-conflicts-warren-buffett-mike-bloomberg-undermine-manufactured-housing-via-sierra-club-lawsuit/

 

These issues are quite connected to the revelations from the third-party legal research report linked below. That report buttressed years of exposes and claims made by MHProNews and no others in the affordable manufactured housing trade media or blogging scene.

 

 

Bombshell!BuffettObamaPicBerkshireClayton21stVanderbiltHUDfhfaFannieFreddieMHILogosMHIMembersRippedFelonyMonopolyManufacturedHomeIndustryREITsKnudsonLawSDCoyottesLogoSamStrommenResearch
https://www.manufacturedhomepronews.com/bombshell-buffett-berkshire-clayton-homes-21st-vanderbilt-specific-mhi-members-ripped-felony-monopolization-of-the-american-manufactured-home-industry/

 

 

Visionary MHARR leadership has long worked with long-range thinking and action, as the report below makes clear.

 

UnlockingLegalDoorMoreManufacturedHomeSalesZoningPlacementAllHellWillBreakLooseExclusiveMHProNewsLogoPhotos
https://www.manufacturedhomepronews.com/unlocking-legal-door-to-more-manufactured-home-sales-zoning-placement-all-hell-will-break-loose-exclusive/

 

That workhorse style effort by MHARR is poised to pay dividends on the regulatory items noted above. While MHI sycophants might claim that MHI has spoken out on such issues too, that begs the question. Would they absent MHARR’s work? Meaning, does ongoing pressure from MHARR on behalf of independents and consumers (the later of whom pay no dues) push MHI to occasion do what they claim to do?

If MHI was serious about advancing the industry, then why do they fail to promote the good laws that are already on the federal books? Why did they fail to implement good laws that already exist? See the in depth report on that topic, linked below.

 

FootDraggingRiggedSystemManufacturedHousingLendingCommentsFedsVariousProfessionalsMHProNews
https://www.manufacturedhomepronews.com/foot-dragging-rigged-system-manufactured-housing-lending-comments-to-feds-by-various-professionals/
YouDoNotTakeYearsToDesignBuildLoopingRampElevatedHighwayAroundCityWhenYouCanWalkAcrossTheStreetQuoteLATonyKovachMHProNews
https://www.manufacturedhomepronews.com/foot-dragging-rigged-system-manufactured-housing-lending-comments-to-feds-by-various-professionals/
YouCanFoolAllofthePeopleSomeoftheTimeSomeofthePeopleAlloftheTimeButCantFoolAllofthePeopleAlloftheTimeAbrahamLincolnAbeLincolnQuoteMHproNews
Hasn’t there been con artists who posture one thing but do another for centuries? This is why words must be matched with action, and the history or performance by people, companies, and nonprofits should be examined with care before trust is given.

 

Multistory manufactured homes and other innovations noted above are among the items that MHARR often been thwarted by MHI and their connected ‘powers that be’ over the course of years. That is helps explain why faster progress does not take place. MHI, as Strommen’s antitrust and RICO allegations legal research report claims, has been working to keep the industry underperforming for years. Who does that benefit? The larger players that consolidate the industry at discounted valuations as a result.

But that is precisely why Representative Marcia Fudge (OH-D), once confirmed as the Biden-Harris HUD Secretary, may rapidly be discerned as either authentically wanting to advance manufactured housing and more affordable home ownership, OR she will possibly be revealed as just one more politico that is a tool of the billionaire class and their billionaire corporate interests.

Have longtime industry professionals seen this movie from MHI and their big boy masters before? What exactly does it mean when MHI brags about their access?

 

RichardDickJennisonMHIPresidentPhotoBrianMontgomeryEnhancedPreemptionFHATitleChattelLoans1010RuleTimWilliamsDontLearnFromHistoryDailyBusinessNewsMHProNews

 

Watch for a planned special report that will shed light on related issues in the near term.

 

LesliGoochHouseMajorityLeaderStenyHoyerMD-D-ManufacturedHousingInstitutePhotoOpManufacturedHomeProNewsCartoonSatire

Subscribe to Our Newsletter

17162

CHECKLIST

 

BidenExecDirectivesRescindedTrumpAdminExecutiveOrdersAssociationWarnsLoomingImmediateManufacturedHousingIndustryImpactsMHProNews
https://www.manufacturedhomepronews.com/biden-executive-directives-rescinded-trump-administration-executive-orders-association-warns-of-looming-immediate-manufactured-housing-industry-impacts/
iReportNewsTipsCommentsSendMastheadManufacturedHomeProNews
We recommend that news tips NOT use company, nonprofit or organizational emails or cell phones. To report a news tip, click the image above or send an email to iReportMHNewsTips@mhmsm.com – To help us spot your message in our volume of email, please put the words NEWS TIP or COMMENTS in the subject line.

 

 

Stay tuned for more of what is ‘behind the curtains’ as well as what is obvious and in your face reports. It is all here, at the runaway largest and most-read source for authentic manufactured home “Industry News, Tips, and Views Pros Can Use” © where “We Provide, You Decide.” © ## (Affordable housing, manufactured homes, reports, fact-checks, analysis, and commentary. Third-party images or content are provided under fair use guidelines for media.) (See Related Reports, further below. Text/image boxes often are hot-linked to other reports that can be access by clicking on them.)

CongRepAlGreenDeskTamasKovachLATonyKovachPhoto12.3.2019ManufacturedHomeProNews
All on Capitol Hill were welcoming and interested with the discussion of manufactured housing related issues on our 12.3.2019 meetings. But Texas Congressman Al Green’s office was tremendous in their hospitality. Our son’s hand is on a package that included the Constitution of the United States and other goodies. MHProNews has worked with people and politicos across the left-right divide.

By L.A. “Tony” Kovach – for MHProNews.com.

Tony earned a journalism scholarship and earned numerous awards in history and in manufactured housing.

For example, he earned the prestigious Lottinville Award in history from the University of Oklahoma, where he studied history and business management. He’s a managing member and co-founder of LifeStyle Factory Homes, LLC, the parent company to MHProNews, and MHLivingNews.com.

This article reflects the LLC’s and/or the writer’s position, and may or may not reflect the views of sponsors or supporters.

http://latonykovach.com

Connect on LinkedIn: http://www.linkedin.com/in/latonykovach

 

Related References:

The text/image boxes below are linked to other reports, which can be accessed by clicking on them.

CaseAgainstClaytonHomesYearsLegalRegulatoryClaimsManufacturedHomeLivingNewsLogos
https://www.manufacturedhomelivingnews.com/case-against-clayton-homes-years-of-legal-regulatory-claims/
CongresswomanMaxineWatersCA-43-D-FTWarrenBuffettCastleMoatComingEpicAffordableHousingFinanceClashChairWatersVsBuffettClaytonHomesManufacturedHomeLivingNews
https://www.manufacturedhomelivingnews.com/coming-epic-affordable-housing-finance-clash-chair-maxine-waters-vs-warren-buffett-clayton-homes-historic-challenges-ahead/
MachineHumanSufferingBerkshireClaytonLOGOManufacturedHousingInstRonOlsonLawrenceCunninghamJohnGreinerResponseMTOGWUGraydonLawLogosAllegationsFelonyAbusesKnudsonLawReportStrommen
https://www.manufacturedhomelivingnews.com/machine-of-human-suffering-berkshire-hathaways-clayton-homes-manufactured-housing-institute-attorneys-response-to-allegations-felony-abuses-knudson-law/
FHFADutyToServeManufacturedHousingLendingDecisionOddsBidenHousingPoliciesHUDManufacturedHomeZoningStudyOffTrackBeforeStartsManufacturedHousingInvestingStockUpdatesMHProNewsLOGOS
https://www.manufacturedhomepronews.com/fhfa-duty-to-serve-manufactured-housing-lending-decision-at-odds-with-biden-housing-policies-hud-manufactured-home-zoning-study-off-track-before-it-starts-plus-manufactured-housing-investing-stock/
RippingOffAmericanDreamFeudalismRisingWarrenBuffettBillGatesGeorgeSorosJeffBezosMarkZuckerbergPhotosBillionairesRiggedSystemMHLivingNews
https://www.manufacturedhomelivingnews.com/ripping-off-the-american-dream-feudalism-rising-warren-buffett-bill-gates-george-soros-other-billionaires-and-rigged-system/

Buffett/Berkshire Bust! Stunning Charges – Frank Rolfe, Dave Reynolds, Impact Communities Lawsuit Against Residents; MHAction Connection Evidence

 

2IncredibleShrinkingZoningProblemManufacturedHousingAssocRegulatoryReformIssuesPerspectivesSept2019
https://manufacturedhousingassociationregulatoryreform.org/the-incredible-shrinking-zoning-problem-september-2019-mharr-issues-and-perspectives/

 

 

mas kovach mhpronews shopping with soheyla .jp

Get our ‘read-hot’ industry-leading 

get our ‘read-hot’ industry-leading emailed headline news updates